One Tree Hill Allotment Society

Recent Posts

  • Annual Wassailing of One Tree Hill
  • Wassailing of One Tree Hill

Archives

  • January 2024
  • January 2023
  • January 2019
  • May 2017
  • January 2017
  • September 2016
  • June 2016
  • April 2016
  • March 2016

Skip to content
  • Home
  • About
    • Applications
    • Membership and Society
    • Allotment Layout
    • History
  • Events
  • News
  • Photos
  • Your Plot
    • Communal Facilities
    • Cultivation
    • Health and Safety
    • Security
  • Committee
    • Minutes of Meetings
    • Newsletters

Allotment Layout

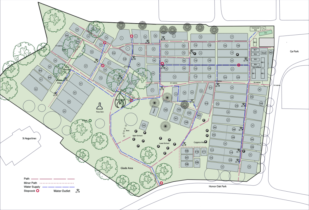
The map shows the layout of the plots and amenities on the allotment site

Allotment Layout July 2024

Share this:

  • Share on X (Opens in new window) X
  • Share on Facebook (Opens in new window) Facebook
Like Loading...

Blog at WordPress.com.

Privacy & Cookies: This site uses cookies. By continuing to use this website, you agree to their use.
To find out more, including how to control cookies, see here: Cookie Policy
  • Subscribe Subscribed
    • One Tree Hill Allotment Society
    • Already have a WordPress.com account? Log in now.
    • One Tree Hill Allotment Society
    • Subscribe Subscribed
    • Sign up
    • Log in
    • Copy shortlink
    • Report this content
    • View post in Reader
    • Manage subscriptions
    • Collapse this bar
 

Loading Comments...
 

    %d